Delhi E85
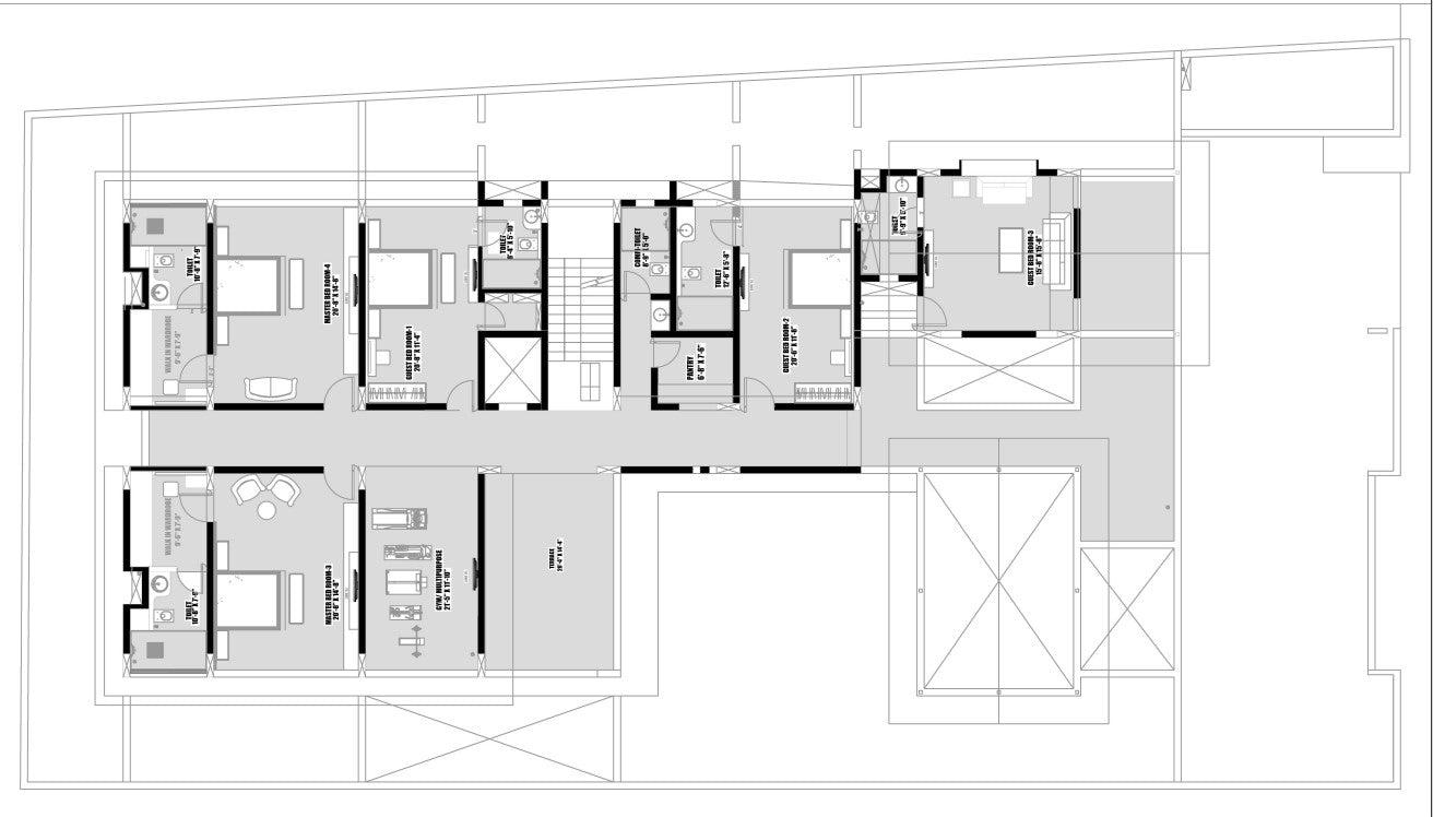
The Bangur House (E-85) project in Vasant Vihar, New Delhi, was a complex undertaking to design a contemporary home for a four-generation, multi-generational family. The client’s mandate required a design that upheld core Indian cultural values, prioritizing filial piety and hierarchy. Our resulting philosophy was deeply inspired by the traditional Chinese si he yuan (quadrangle house), focusing on symmetry and a clear hierarchical structure. This approach guided the spatial planning—from the placement of the master bedroom at the highest level to the creation of a harmonious balance between intimate private spaces and expansive communal areas.
Delhi E85